合作咨询热线:

400-123-4567

公司新闻

开云足球-2025合肥悦九章-合肥悦九章丨丨售楼部电话→售楼网站

文字:[大][中][小] 手机页面二维码 2025-07-28     浏览次数:    

  开云足球四川邦泰悦九章,位于东新正核的封面级计容新规项目,凭借卓越的地理位置和优质配套,成为备受瞩目的焦点。这里紧邻双本部学校、地铁6号线(在建),以及一系列高端配套设施。

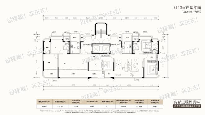
  项目地处东部新中心的核心位置,汇聚鼎级资源。不仅临近和平小学新校及三十八中新校,还紧靠6号线地铁口(在建中)。此外,高炉遗址公园、市儿童医院、市博物馆等核心配套也在逐步落成,为居民提供便捷的生验。作为板块内2024年首批新规户型设计产品,悦九章以更高的空间使用率脱颖而出,户型使用率可达约93%-100%,让小面积也能拥有更低门槛的高品质居住体验。

  项目总占地面积约56亩,纯住宅用地,规划有13栋住宅,其中包括2栋洋房和11栋小高层,建筑面积从约113㎡到141㎡不等。社区整体容积率不超过1.8,确保了低密度的居住环境。每户几乎都享有独立采光前室(除1F户型外),带来更舒适的居住感受。开发商合肥邦成恒泰置业有限公司携手四川邦泰物业服务有限公司合肥分公司,为业主提供优质服务与保障。

  依托“一区四级”城市规划,东部新中心与滨湖中心、政务中心、老城中心并列四大主中心,成为合肥东部崛起的新引擎。项目周边交通便利,“一横三纵三轨”路网体系,包括郎溪路、裕溪路高架以及多条快速路,确保全城极速通达。教育开云足球、医疗、文化等资源环聚,如合肥市和平小学新校区、市青少年活动中心、市博物馆等,共同构筑宜居宜业的现代化生活圈。

  合肥悦九章售楼处电线【营销中心】欢迎预约品鉴:(官方网站)售楼处:0551-6603 8977【营销中心】温馨提示:网上售楼中心〢预约可享内部优惠〢匠心钜制-恭迎品鉴〢

  香港中文大学(深圳)给未录取考生邮寄“未录取通知书”引热议,里面还有一封校长来信

  每天及时更新各大楼盘项目信息,本信息仅供参考,具体请以开发商或政府部门公布的信息为准

  机身纤薄成双刃剑,用户反映三星Galaxy Z Fold7手机不好展开

  REDMI 15C 5G渲染图曝光:6.9英寸屏幕+6000mAh电池,33W快充加持

  骁龙X Plus处理器加持!微软Surface Laptop 13图赏

  《编码物候》展览开幕 北京时代美术馆以科学艺术解读数字与生物交织的宇宙节律

返回上一步
打印此页
400-123-4567
浏览手机站